Kies foto's voor de advertentie (max 6, geselecteerd: 4):

ERA Connect - Hoeselt
www.era.be/nl/era-connect
Te koop
Gepubliceerd op 4/4/2026
Huis te koop in Bilzen-Hoeselt met 3 slaapkamers
Woning · Lochtstraat 41, 3740 Eigenbilzen (Limburg)
€395.000




Details
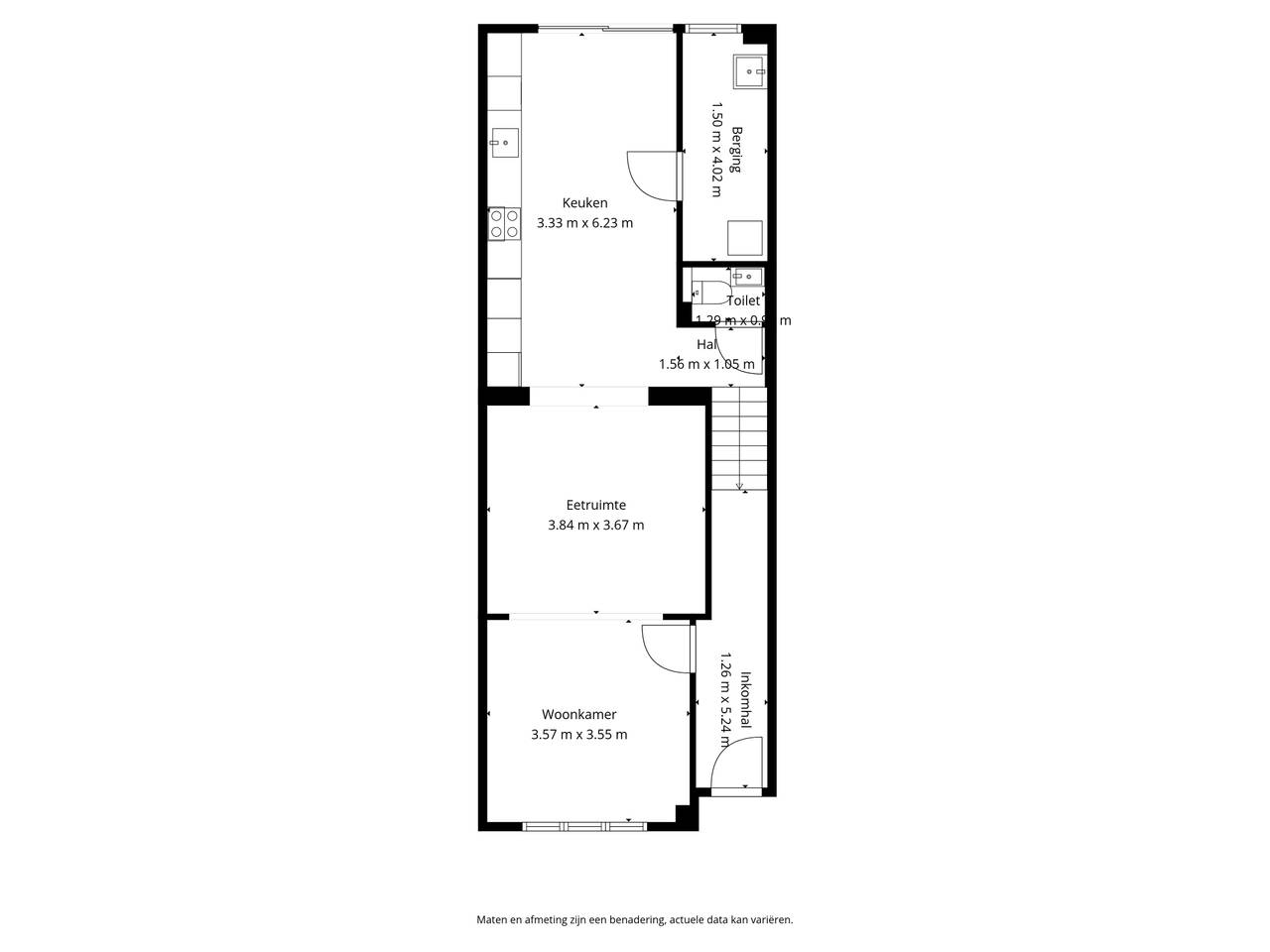
| Bewoonbare opp. | 139 m² |
| Perceeloppervlak | 415 m² |
| Tuin | 256 m² |
| Slaapkamers | 3 |
| Badkamers | 1 |
| Verdiepingen | 3 |
| Bouwjaar | 1956 |
| Verwarming | Andere |
EPC
B195 kWh/m²
KI
€473
Kenmerken
- ✓ Tuin (256 m²)